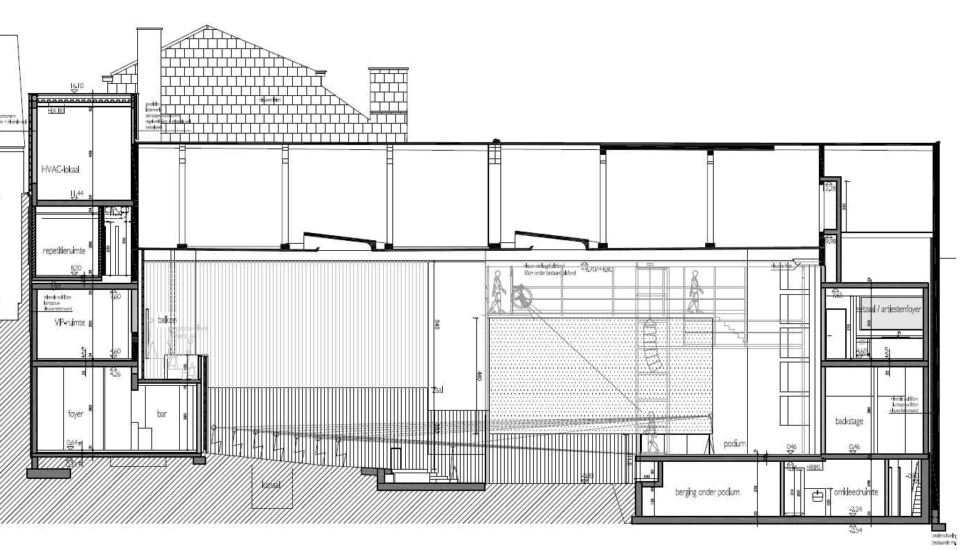
Gedurende het ontwerp van het project ‘Het Depot’ stonden twee ambities centraal: behoud van het karakter van de oude zaal (de vroegere cinemazaal) en het realiseren van een moderne concertzaal die aan alle huidige verwachtingen en normen voldoet.
Zeker met betrekking tot akoestiek vormt dit een grote uitdaging. Het gebouw is namelijk gelegen binnen de ring van Leuven, aanpalend aan woongebouwen, wat een hoge geluidisolatie vraagt voor de buitenschil van het gebouw. Als antwoord hierop heeft het ontwerpteam ervoor gekozen de authentieke zaal te bewaren, maar alle omringende bestaande gebouwdelen te slopen. Rond de zaal worden twee volledig nieuwe vleugels neergezet waarin een ambitieus programma gerealiseerd wordt: foyer/inkom met klein podium, kantoren, VIP ruimte, leslokalen, repetitieruimten, opnamestudio, artiestenloges
Deze nieuwe gebouwdelen worden structureel volledig ontkoppeld van de aanpalende gebouwen. Bijkomend zijn de repetitieruimten zijn uitgewerkt volgens het ‘doos-in-doos’ principe, waardoor gelijktijdig gebruik met alle omringende functies en de zaal mogelijk is.
De grote zaal is akoestisch geoptimaliseerd voor elektrisch versterkte muziek. Hierbij gaat er speciale aandacht naar de geluidabsorptie van lage bastonen. De hoofdtoegangen tot de zaal zijn uitgewerkt als akoestische sassen.
Zowel in de zaal als in de repetitieruimten gebeurt de toevoer van lucht via verdringingsventilatie, wat resulteert in een zeer laag ventilatiegeluid.
Artistiek directeur Mike Naert roemt de akoestiek: ‘ongelooflijk goed, ik kom op veel plaatsen, en echt: wij zitten dankzij jullie bij de top van België qua sound’




