Het cultuurcentrum is ingeplant op de hoek van de Brielstraat en de Tweebruggenlaan, aan de kant van het Museum van Deinze en de Leiestreek. Het gebouw is een compact volume met een benedenbouw in glas en aluminium en een bovenbouw in witte geglazuurde baksteen. Blikvanger van het gebouw is de toneeltoren boven het podium van de schouwburg.
In een vierkant grondplan worden de programmaonderdelen geschikt rond een centrale foyer met monumentaal bovenlicht.
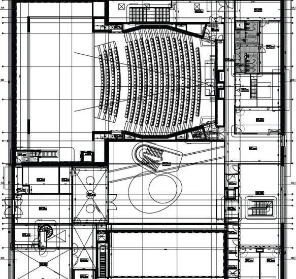
De volledig uitgeruste theaterzaal heeft een capaciteit van 450 zitplaatsen en heeft een warm karakter door het gebruik van hout.
Behalve de theaterzaal zijn er ook een aantal vergaderzalen en polyvalente ruimtes aanwezig waar niet alleen stedelijke organisaties, maar ook lokale organisatoren en verenigingen gebruik kunnen van maken. De centrale polyvalente ruimte is bovendien opdeelbaar en dus geschikt voor zowel kleine als grotere initiatieven.
Met een café op de hoek activeert het gebouw het openbaar domein op een plaats waar anders na openingsuren van het theater een leegte in de stedelijke dynamiek zou ontstaan. Ook de burelen van de dienst cultuur en evenementen zullen er gehuisvest zijn.
De akoestiek van de theaterzaal is geoptimaliseerd voor het gesproken woord. Absorberende plafondpanelen in combinatie met de gestoffeerde stoelen zorgen voor een correcte nagalmtijd. De reflecterende wandpanelen laten ondersteunende reflecties toe zodat een spreker ook achteraan de zaal goed verstaanbaar is; De specifieke driehoekige vormgeving van de wandpanelen voorkomt storende reflecties tussen wanden.
Uiteraard is er ook in alle overige ruimten de nodige aandacht besteed aan een goede akoestiek, waarbij voornamelijk gebruik gemaakt wordt van houtwolcementplaten.
Naast de ruimte-akoestiek is ook veel aandacht besteed aan de geluidisolatie tussen functies onderling en naar de buitenomgeving. Zowel de theaterzaal als de polyvalente zaal zijn structureel volledig losgekoppeld van de rest van het gebouw, tot en met de fundering,
De gevel van de theaterzaal bestaat uit een betonnen binnenschil met hiervoor een trillingsdempend bevestigde gevelsteen, die op deze manier als akoestische voorzetwand werkt. Deze opbouw zorgt voor een zeer hoge gevelisolatie, zowel tegen het verkeersgeluid van buiten, als tegen de geluiduitstraling naar de omgeving.





