Achter de waardige voorgevel van het Museum Plantin-Moretus ligt een conglomeraat van woonhuizen en werkhuizen, tuinen en koeren. Talloze kamers en gangen vormen samen een wondere wereld van luxe en letters, leder en papier.
Een aanzienlijk deel van de collectie bevindt zich momenteel in kelders en op zolders. Deze ruimten beantwoorden geenszins aan de vereisten voor het conserveren van historische boeken. Er is nood aan een adequaat archief voor de prenten, boeken, houten letters en koperen platen. Ook een nieuwe leeszaal is gewenst zodat bezoekers de stukken kunnen bestuderen.
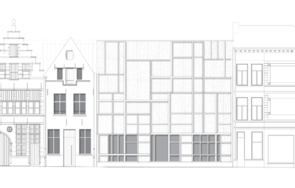
Er is nog net genoeg plaats op de museumsite. Zo wordt het nieuwe gebouw een rijhuis in de straat. Welke uitdrukking krijgt de voorgevel? Voor de depots met hun strenge klimatologische eisen zijn ramen uitgesloten. De leeszaal op de begane grond verlangt daglicht, maar ook discretie en rust. Samen met kunstenaar Benoit van Innis ontwierp noAarchitecten een compositie in massief hout. Het wordt een reliëf van stijlen en regels in dialoog met de uitbundige renaissancegevels ernaast, die op hun beurt een vertaling in steen zijn van de houten vakwerkgevels.